OFF-Building︎



OFF-Building

A proposal for conversion to KIEZ-WERK

Oberschöneweide, BERLIN



The former rubber fabric of the VEB Kabelwerk Oberspree (cable-manufacturing plant) in Berlin is a abandoned property since the tournaround, like most of the listed buildings at the industrial belt.

The building, which was constructed at the beginning oft he 80s in the GDR, was situated at a reclamation of land inside the Spree, because of its large-scale.

Between the dense industrial development of the early 20s the new design was supposed to fullfil the task of addition in a highly functional and compact way.



The kiez is undergoing a big change since the HTW (university) was located nearby the site into old AEG buildings, as part of the city planning scheme providing Oberschöneweide as founders and technology hotspot nearby the Berlin city center.

Over and above the demographic conversion is anticipated by the fact of increasing rents inside the Berliner Ring and therefore give rise to a new cultural revival of the region.

The abandoned properties along the Spree are becoming more and more the home of temorarily used spaces for small-sized industrial units, craftsman, artisan and artists.



New living projects with in total more than 1000 units will be realized in Nieder- and Oberschöneweide the next three years. Many projects with the spacial approach of small-size units for student profils have been realized the last years in direct contact to the industrial belt.



To give the location the harshly needed fixed cultural infrastructur and a meeting point for the Kiez we decided to choose the Platz am Kaisersteg as a vital space.

Located at the perceived center , with the connection of the pedestrian bridge to Niederschöneweide and the link to the S-Bahnstation Schöneweide the site holds the potential to become a cultural melting pot and a recreation green.



The idea of the project is making the proactive claimed boardwalk along the river possible.

The crossing axes at the site making the spot a public junction, which shall survive the overplanning of todays temporary usage across the belt.



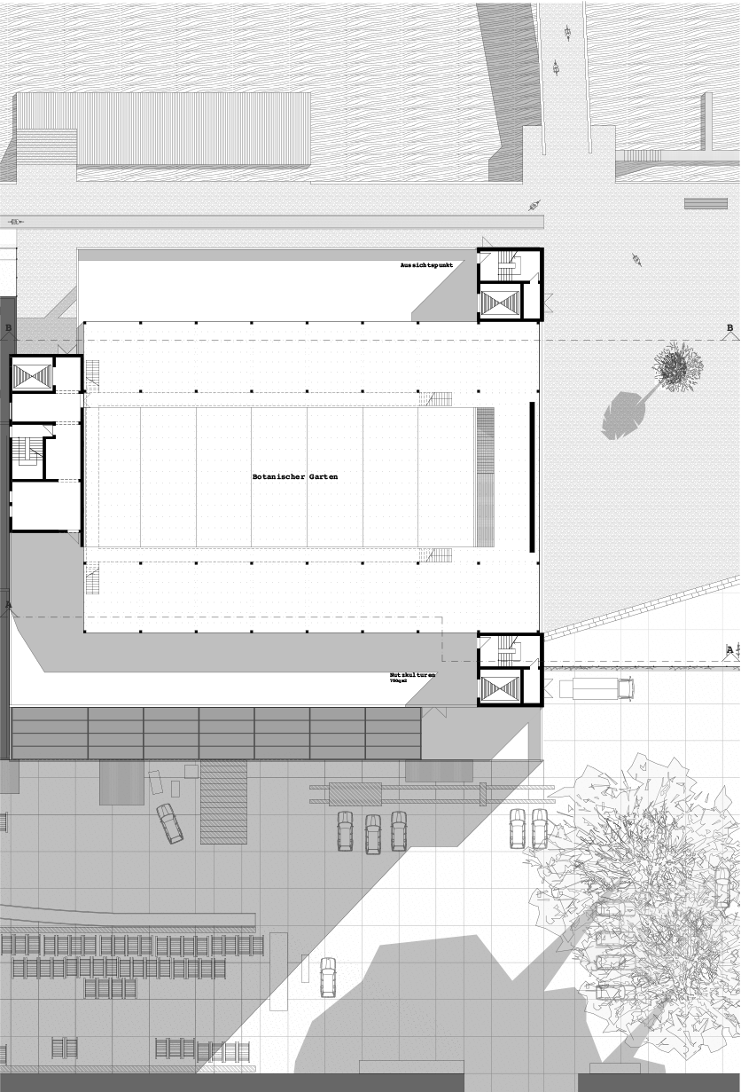
The main idea of the project was to work with the existing spacial qualities of the old production plot and clear up the detailed floor plans, towards a multifunctional open floor plan with chosen visual and audible, overall experiencable relations.


work exhibition, foyer university of arts, berlin (2019)








.
.
.
.
.